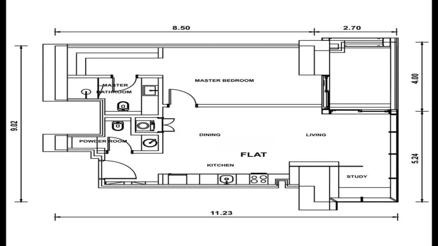
Appartement de 1 chambre à Palm Jumeirah, UAE No. 1319
3 500 000 AED
40 230 AED/m²
1
Chambres
2
Salles de bain
87
Surface habitable, m²
sur la carte
