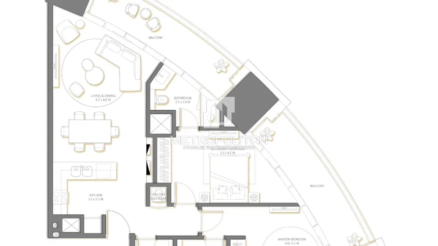
Appartement de 2 chambres à Palm Jumeirah, UAE No. 358
4 800 000 AED
38 096 AED/m²
2
Chambres
3
Salles de bain
126
Surface habitable, m²
sur la carte
Caractéristiques
- Vue sur monument
- Balcon
- Électroménager de cuisine
